Orbais-l'Abbaye (51270)
Réf : 182587
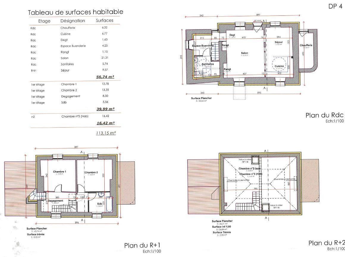
A 20 minutes de Pierry, maison de village type bourgeoise sur un terrain de 936 m² avec vue dégagée offrant après une réhabilitation complète, de beaux volumes. Actuellement composée de 5 pièces nues, elle pourra avec les plans d'architecte proposés s'aménager en entrée sur cuisine ouverte sur séjour, un grand salon sur buanderie et toilettes, à l'étage 2 belles chambres, une salle de bains et par le dégagement au second une grande chambre d'environ 16 m². L'ensemble pourra se compléter d'une chaufferie sur le côté, d'une cave, d'un abri de jardin indépendant. Tout ou partie des menuiseries sont actuellement en PVC (double vitrage). Exposition Est/Ouest. L'ensemble dans un petit bourg toutes commodités, écoles, pharmacie etc... sur place. Le tout à 30 mn d'Epernay.
TRAD_SIROCCO_Caracteristique
Valeurs
Code postal
51270
Surface habitable (m²)
107 m²
surface terrain
936 m²
Nombre de chambre(s)
3
Nombre de pièces
5
Vue
Cour + terrain
TRAD_SIROCCO_Caracteristique
Valeurs
Nb de salle de bains
1
Cuisine
Américaine
Sous/sol
OUI
Murs mitoyens
1
DPE ANCIENNE VERSION
-
Commerces et santé
-
Loisirs
-
Ecoles
-
Transports
-
Pratique
Détails des diagnostics énergétiques
DPE ANCIENNE VERSION
